22 243

Boulevard Palace

22 243
Баку, Сабаильский р., ул. Гюльбалы Алиева, 9
Объявлений: 16

Boulevard Palace

Контакты
Планировки
Показать объявления
Все фото
Boulevard Palace логоЖилой комплекс от застройщика Boulevard Palace
Корпусов: 1Этажей: 17Квартир: 111
Площадь (м²)173 - 453.1
Ценаот 536300 AZN
Внутренний кредитПервоначальный взнос 30%, 50% и 80%. Период оплаты 12 месяцев.

Параметры

Всего корпусов1
Всего блоков1
Всего квартир111
Лифтов в блоке4
Этажей в здании17
На каждом этаже6-7 квартир

Описание

Boulevard Palace — Bakı bulvarından cəmi 200 metr məsafədə yerləşən premium-klass yaşayış kompleksidir. Kompleksin prestij və statusu eleqant dizayn, düşünülmüş mənzil planlaması, rahat parkinq yerləri və funksional həyətyanı sahəsi ilə vurğulanır. Boulevard Palace hər bir sakinin rahatlığı və təhlükəsizliyi nəzərə alınmaqla layihələndirilmiş binalardan ibarətdir. Qapalı ərazi, yeraltı parkinq, lobbi, həmçinin piyada məsafəsində yerləşən kommersiya və pərakəndə satış sahələri mövcuddur. 11 mərtəbəli binada hər mərtəbədə cəmi 2–4 mənzil, 17 mərtəbəli binada isə 5–7 mənzil yerləşir. Pəncərələrdən dənizə, bulvara və Bakı şəhərinə möhtəşəm mənzərələr açılır.
Boulevard PalaceЖилой комплекс
Boulevard Palace лого
Площадь (м²)173 - 453.1
Ценаот 536300 AZN
Ежедневно: 10:00 – 20:00
Баку, Сабаильский р., ул. Гюльбалы Алиева, 9
Баку, Сабаильский р., ул. Гюльбалы Алиева, 9
Планировки
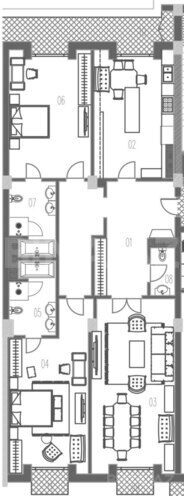
3 комнаты - 173 м²
от 536 300 AZN
от 3 100 AZN/м²
Ремонт: Без ремонтаБалкон: 1Санузел: 2
Жилой комплекс Boulevard Palace, планировка - 3-комн., 173 м²
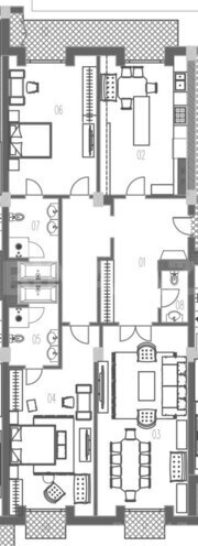
3 комнаты - 173.2 м²
от 554 240 AZN
от 3 200 AZN/м²
Ремонт: Без ремонтаБалкон: 1Санузел: 2
Жилой комплекс Boulevard Palace, планировка - 3-комн., 173.2 м²
3 комнаты - 173.4 м²
от 624 240 AZN
от 3 600 AZN/м²
Ремонт: Без ремонтаБалкон: 1Санузел: 2
Жилой комплекс Boulevard Palace, планировка - 3-комн., 173.4 м²
3 комнаты - 174.4 м²
от 645 280 AZN
от 3 700 AZN/м²
Ремонт: Без ремонтаБалкон: 1Санузел: 2
Жилой комплекс Boulevard Palace, планировка - 3-комн., 174.4 м²
Смотреть еще
Объявления ЖК Boulevard Palace
Объявлений: 16